





- Головна
- Нерухомість
- Апартаменти «вілла на даху» в новобудові в Антибі
Апартаменти «вілла на даху» в новобудові в Антибі
Продаж нових апартаментів, розташованих в новому житловому комплексі, зданому в експлуатацію в кінці 2023 року, в тихому і престижному районі Антиб.
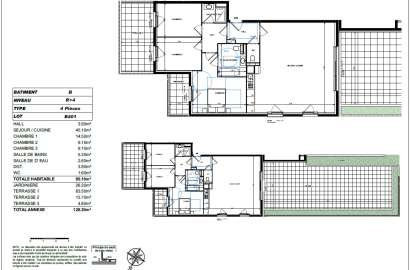
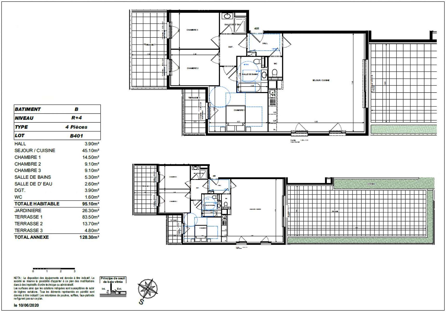
Розташована на верхньому поверсі, ця 4-кімнатна «вілла на даху» пропонує 95,10 кв.м житлової площі і простору терасу площею 128,30 кв.м з панорамними видами, що простягаються від гірського масиву Меркантур до мису Ніцци і мису Антиб.
Апартаменти включають світлу вітальню 45 кв.м з відкритою кухнею, три затишні спальні, ванну і душову кімнати. - Резиденція потопає в зелені доглянутого приватного парку і пропонує виняткову якість життя. Всі необхідні зручності знаходяться поблизу: школа - всього в 500 метрах, а до парку Вальмаск можна дістатися за 13 хвилин. Яхтовий порт Вобан, піщані пляжі, центр міста і старий Антіб розташовані менш ніж в 10 хвилинах їзди.
Сучасний дизайн, високоякісна обробка і продумане планування роблять цю нерухомість ідеальним вибором як для постійного проживання, так і для розкішної другої резиденції на Лазурному Березі. Унікальна пропозиція в одному з найпрестижніших районів Французької Рив'єри.













































































ServiceAzur & Monaco Properties
14 Boulevard d'Italie
98000 Monaco
+33 4 93 29 84 25
9:00 – 18:00
Монако (GMT +2)