





- Главная
- Недвижимость
- Апартаменты "вилла на крыше" в новостройке в Антиб
Апартаменты "вилла на крыше" в новостройке в Антиб
Продажа новых апартаментов, расположенных в новом жилом комплексе, сданном в эксплуатацию в конце 2023 года, в тихом и престижном районе Антиб.
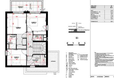
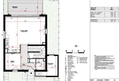
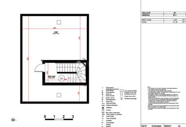
Расположенная на верхнем этаже, эта 4-комнатная «вилла на крыше» предлагает 95,10 кв.м жилой площади и просторную террасу площадью 128,30 кв.м с панорамными видами, простирающимися от горного массива Меркантур до мыса Ниццы и мыса Антиб.
Апартаменты включают светлую гостиную 45 кв.м с открытой кухней, три уютные спальни, ванную и душевую комнаты.
Резиденция утопает в зелени ухоженного частного парка и предлагает исключительное качество жизни. Все необходимые удобства находятся поблизости: школа — всего в 500 метрах, а до парка Вальмаск можно добраться за 13 минут. Яхтенный порт Вобан, песчаные пляжи, центр города и старый Антиб расположены менее чем в 10 минутах езды.
Современный дизайн, высококачественная отделка и продуманная планировка делают эту недвижимость идеальным выбором как для постоянного проживания, так и для роскошной второй резиденции на Лазурном Берегу. Уникальное предложение в одном из самых престижных районов Французской Ривьеры.











































































ОБЩИЕ РАСХОДЫ
При покупки недвижимости, на момент подписания подлинного акта купли-продажи, вам нужно будет оплатить : нотариальные (6-9%) и агентские сборы (3% + НДС), рассчитанные от суммы покупки жилья.
НОТАРИАЛЬНЫЕ И РЕГИСТРАЦИОННЫЕ СБОРЫ:
При покупки нового жилья или жилья под строительство, общие нотариальные сборы составляют 2,5% (1,5% нотариальные + 1% регистрационные сборы) от суммы покупки.
При покупке недвижимости физическим лицом на гражданское общество для владения недвижимостью (SCI) зарегистрированным в Монако, оплачиваются: 6% (1,5% нотариальные + 4,5% регистрационные сборы) от суммы покупки.
Приобретение жилья посредством режима «marchands de biens» (только профессионалы): 1,5% (нотариальные сборы) от суммы покупки, но в данной ситуации недвижимость должна быть перепродана в течение 4 лет, в противном случае нужно будет оплатить регистрационный сбор в размере 4,5%.
При покупке акций гражданского общества (SCI), зарегистрированного в Монако и владеющего недвижимостью, оплачиваются: 4,5% регистрационных сборов + затраты на нотариуса или адвоката.
Приобретение через оффшорную или иностранную компанию : только регистрационный сбор 7,5% от суммы покупки.
Приобретение недвижимости "viager" : 6% (1,5% нотариальные сборы + 4,5% регистрационные сборы) в расчете на стоимость всех частей недвижимости (если таковые есть) + на 10 лет аренды (если есть).
В случае, если покупка финансируется за счет ипотеки, добавляется регистрационный сбор в размере 0,92% от суммы ипотеки.
УСЛУГИ АГЕНТСТВА НЕДВИЖИМОСТИ:
Агентские сборы устанавливаются Монакской Палатой Недвижимости (Chambre Immobilière Monégasque) и фиксируется в 3% + НДС, что составляет 3,6% от суммы покупки.
ServiceAzur & Monaco Properties
14 Boulevard d'Italie
98000 Monaco
+33 4 93 29 84 25
9:00 – 18:00
Монако (GMT +2)