











- Главная
- Недвижимость
- Новая квартира у моря в элитном жилом комплексе Parc du Cap
Новая квартира у моря в элитном жилом комплексе Parc du Cap
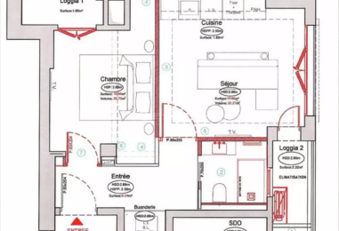
Новые четырёхкомнатные апартаменты, расположенные в блоке D престижного жилого комплекса Parc du Cap на Кап д’Антиб, в шаговой доступности от пляжей. Окружённый живописным парком, комплекс предлагает своим резидентам первоклассные удобства: теннисный корт, два бассейна, фитнес-центр и SPA-салон, частный подземный паркинг, круглосуточную охрану и автоматические ворота.
Апартаменты площадью 114 кв.м. включают прихожую со встроенными шкафами, просторную гостиную, современную оборудованную кухню, а также три спальни, каждая из которых имеет собственную ванную или душевую комнату. Интерьеры выполнены с использованием высококачественных материалов и новых дизайнерских решений.
Преимуществом данного объекта является его уникальное расположение в одном из самых престижных курортных районов Французской Ривьеры, всего в нескольких минутах ходьбы от моря, в 20 км от международного аэропорта Ниццы и в 10 км от знаменитой набережной Круазетт в Каннах.




























































































ОБЩИЕ РАСХОДЫ
При покупки недвижимости, на момент подписания подлинного акта купли-продажи, вам нужно будет оплатить : нотариальные (6-9%) и агентские сборы (3% + НДС), рассчитанные от суммы покупки жилья.
НОТАРИАЛЬНЫЕ И РЕГИСТРАЦИОННЫЕ СБОРЫ:
При покупки нового жилья или жилья под строительство, общие нотариальные сборы составляют 2,5% (1,5% нотариальные + 1% регистрационные сборы) от суммы покупки.
При покупке недвижимости физическим лицом на гражданское общество для владения недвижимостью (SCI) зарегистрированным в Монако, оплачиваются: 6% (1,5% нотариальные + 4,5% регистрационные сборы) от суммы покупки.
Приобретение жилья посредством режима «marchands de biens» (только профессионалы): 1,5% (нотариальные сборы) от суммы покупки, но в данной ситуации недвижимость должна быть перепродана в течение 4 лет, в противном случае нужно будет оплатить регистрационный сбор в размере 4,5%.
При покупке акций гражданского общества (SCI), зарегистрированного в Монако и владеющего недвижимостью, оплачиваются: 4,5% регистрационных сборов + затраты на нотариуса или адвоката.
Приобретение через оффшорную или иностранную компанию : только регистрационный сбор 7,5% от суммы покупки.
Приобретение недвижимости "viager" : 6% (1,5% нотариальные сборы + 4,5% регистрационные сборы) в расчете на стоимость всех частей недвижимости (если таковые есть) + на 10 лет аренды (если есть).
В случае, если покупка финансируется за счет ипотеки, добавляется регистрационный сбор в размере 0,92% от суммы ипотеки.
УСЛУГИ АГЕНТСТВА НЕДВИЖИМОСТИ:
Агентские сборы устанавливаются Монакской Палатой Недвижимости (Chambre Immobilière Monégasque) и фиксируется в 3% + НДС, что составляет 3,6% от суммы покупки.
ServiceAzur & Monaco Properties
14 Boulevard d'Italie
98000 Monaco
+33 4 93 29 84 25
9:00 – 18:00
Монако (GMT +2)