
- Главная
- Недвижимость
- Апартаменты под реставрацию в нескольких шагах от Монте-Карло
Апартаменты под реставрацию в нескольких шагах от Монте-Карло
Продажа апартаментов под реставрацию. Расположенные в престижной резиденции Roqueville, в районе Карре д’Ор, всего в нескольких шагах от площади Казино, Монте-Карло, эти апартаменты представляют отличную инвестиционную возможность. Два проекта реконструкции дают чёткое представление о том, как преобразовать это жильё в элегантную роскошную недвижимость в одном из самых востребованных мест Монако.
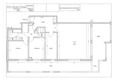
На сегодняшний день общая площадь квартиры составляет 100 м², включая террасу площадью 11 м². Существующая планировка включает в себя просторный холл, ведущий в большую гостиную с выходом на террасу, отдельную кухню и спальню с собственной душевой комнатой.
Резиденция имеет свой ухоженный парк и круглосуточный консьерж-сервис в дополнение к непосредственному доступу ко всем самым роскошным удобствам Монако.
ОБЩИЕ РАСХОДЫ
При покупки недвижимости, на момент подписания подлинного акта купли-продажи, вам нужно будет оплатить : нотариальные (6-9%) и агентские сборы (3% + НДС), рассчитанные от суммы покупки жилья.
НОТАРИАЛЬНЫЕ И РЕГИСТРАЦИОННЫЕ СБОРЫ:
При покупки нового жилья или жилья под строительство, общие нотариальные сборы составляют 2,5% (1,5% нотариальные + 1% регистрационные сборы) от суммы покупки.
При покупке недвижимости физическим лицом на гражданское общество для владения недвижимостью (SCI) зарегистрированным в Монако, оплачиваются: 6% (1,5% нотариальные + 4,5% регистрационные сборы) от суммы покупки.
Приобретение жилья посредством режима «marchands de biens» (только профессионалы): 1,5% (нотариальные сборы) от суммы покупки, но в данной ситуации недвижимость должна быть перепродана в течение 4 лет, в противном случае нужно будет оплатить регистрационный сбор в размере 4,5%.
При покупке акций гражданского общества (SCI), зарегистрированного в Монако и владеющего недвижимостью, оплачиваются: 4,5% регистрационных сборов + затраты на нотариуса или адвоката.
Приобретение через оффшорную или иностранную компанию : только регистрационный сбор 7,5% от суммы покупки.
Приобретение недвижимости "viager" : 6% (1,5% нотариальные сборы + 4,5% регистрационные сборы) в расчете на стоимость всех частей недвижимости (если таковые есть) + на 10 лет аренды (если есть).
В случае, если покупка финансируется за счет ипотеки, добавляется регистрационный сбор в размере 0,92% от суммы ипотеки.
УСЛУГИ АГЕНТСТВА НЕДВИЖИМОСТИ:
Агентские сборы устанавливаются Монакской Палатой Недвижимости (Chambre Immobilière Monégasque) и фиксируется в 3% + НДС, что составляет 3,6% от суммы покупки.
ServiceAzur & Monaco Properties
14 Boulevard d'Italie
98000 Monaco
+33 4 93 29 84 25
9:00 – 18:00
Монако (GMT +2)